︎
AAiO
Actualités
Travaux
Textes
Informations
Fondation
Naya
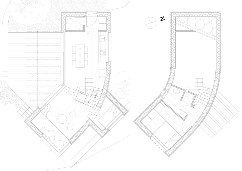
Projet de maison à Hastières
Habitation
2022
Auteur de projet : iO
Collaborateurs : Guillaume Rambaud
Situation : Hastières
Atelier d’architecture iO
à Montegnet (Belgique)
cliquez ici pour nous envoyer un mail
+32 (0) 83 63 40 44
Montegnet 2E, 5370 Flostoy, TVA 0686.928.858
Running on Cargo